Stranges and Glendenning Hill Building Replacement

Sheppard & Rout

B2 Stranges Building From Manchester St

Citation

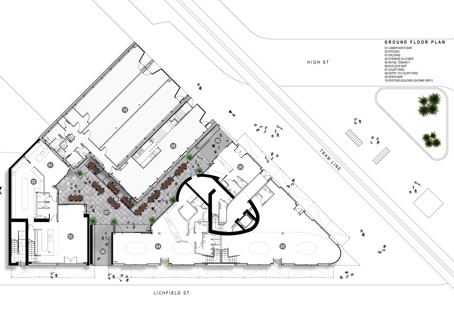
Client and architect set out to make a cosmopolitan, industrious and joyful place on a prominent urban site, and they have succeeded admirably. The building presents a glazed face, intended to have a jewel-like effect, to the city; at the same time, a public laneway to a protected courtyard offers sanctuary from traffic and street noise. The mix of ground-level retail and hospitality spaces and upper-level offices creates its own mini-precinct, a modern village with an urbane disposition. Elements such as the half arches that squeeze space before releasing it in the laneway and interior courtyard reveal the architects’ understanding of people-scaled planning: they know what makes small city places work. This commercial building makes a fine contribution to the new Christchurch.

Related content

2015 Named Awards

Search